HYTHE BY BOTANICA 天堂植物园,普吉岛“别墅式”豪华公寓项目
- ฿10,800,000+
Overview 概述
- 57+ sqm
- 1 - 4
- 1 - 6
Description 描述
Pre-Sale | HYTHE BY BOTANICA, “Villa-style” luxury condominium project in Phuket
天堂植物园(HYTHE BY BOTANICA),是普吉岛著名的顶级混合用途开发项目 — Botanica Grand Avenue 的其中一部分。整个项目坐落在葱郁的绿地之中,以自然为核心,营造宁静祥和的氛围。紧邻 Laguna Golf Phket 高尔夫球场,距离 Laguna Beach 拉古纳海滩 1.2 公里。优越的地理位置,坐拥壮丽的湖景和高尔夫球场;交通便利,能够轻松前往普吉岛各地,在私密性和便捷性之间取得完美平衡。
项目名:HYTHE BY BOTANICA
开发商:Botanica Luxury Villas(泰国最大的豪华房地产开发商之一)
项目交付:2027 年第一季度(已售出 48%)
“别墅式”公寓楼:
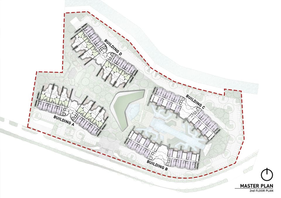
4 栋 6 层住宅楼(共 276 套;天花板高度:2.7米)+ 俱乐部会所,占地面积约 35,000 平方米。户型有:1 居室、2-3 居室(包括复式)、4 室公寓。
基本价格:配备高档厨房和大型家电的全装修公寓价格(所有公寓的卫生间均设有浴缸和淋浴区)
◇ 1 居室(55+平方米):1,080万泰铢起;
◇ 2 居室(85+平方米)1,670 万泰铢起;
◇ 3 居室(123+平方米,部分设有 2 个私家车位):2,700万泰铢起;
◇ 两层复式3 居室(约 398+平方米,2 个私人停车位):5,590 万泰铢起;
◇ 顶层 4 居室(680+平方米,2个私人停车位,私家泳池)1.65亿泰铢起。
高端卫浴品牌:Christina(意大利)、Kasch(德国)、Kasch智能马桶 高端电器和开关品牌:Mёx、Electrolux、LG、Samsung、ART DNA
您可以在页面下方下载:
✓ 【项目概况】
✓ 【项目书】
✓ 【价格表】
✓ 【家具套餐说明】
✓ 【开发商介绍】
楼层平面图(点击展开)






1 居室户型图(点击展开)










2 居室户型图(点击展开)










3 居室户型图(点击展开)

















复式公寓户型图(点击展开)




顶层公寓户型图(点击展开)




付款计划:
◇ 预订费 – 200,000 泰铢
◇ 首笔付款 – 30 天内支付 35%
◇ 剩余 65% – 分 22-30 个月分期付款,标准付款期限为 2027 年 3 月
额外付款:
✓ 维护费(水电费):每年每平方米 65 泰铢(每年预付)
✓ 偿债基金:650 泰铢/平方米(交钥匙时一次性支付)
✓ 安装电表:20,000 泰铢
✓ 财产登记:
租赁权 – 价格的 0.55%
永久产权 – 售价的 3.15%
自 2025 年 5 月 19 日起的特别优惠: 9 个 3-4BR 单位 2 年 6% 的保证收益计划
基础设施:
✧ 大堂、接待处、24/7 安保、视频监控
✧ 179 个停车位(是泰国建筑标准的两倍)
✧ 75 米长泳池+儿童区
✧ 带日光躺椅的露台
✧ 公共区域设有按摩浴缸
✧ 会所:SPA、桑拿、休闲室、儿童俱乐部、烧烤区、健身房、瑜伽区
Documents 文档
Facility 设施
- 24H Security 24小时保安
- Access Card 门禁系统
- Car Parking 停车场
- CCTV 监控系统
- Children's Pool 儿童泳池
- Elevator 电梯
- Garden 花园
- Gym 健身房
- Hotel Lobby 酒店大堂
- Hotel-style services 酒店式服务
- Indoor Kids Zone 儿童区
- Multi-purpose Room 多用途室
- Outdoor Kids Zone 户外儿童区
- Playground 操场
- Public Pool 公共泳池
- Restaurants 餐厅
- Sauna 桑拿
- Shared Office 共享办公室
- Tennis Court 网球场
Address
Google Maps 谷歌地图- Location 位置: Phuket 普吉岛


